Dane techniczne:
- Ciężar: 9 kg
- Częstotliwość wibracji: 3000/min
- Długość węża: 245 mm
- Moc: 180 W
- Model: Vet 300
Najniższa cena produktu z 30 dni to : 2 089,77 zł - 31.10.2025
Najniższa cena w ciągu ostatnich 30 dni
W ratach już od:
41.7954 złmiesiecznie
Oblicz ratę
Wybierz bank aby obliczyć ratę
×Wibrator przyczepny Enar VET 300 - niezawodność i wydajność w jednym!
Wibrator przyczepny Enar VET 300 to urządzenie, które łączy w sobie nowoczesną technologię i solidne wykonanie, zapewniając niezawodność w najtrudniejszych warunkach. Dzięki swojej konstrukcji, jest idealnym rozwiązaniem dla profesjonalistów zajmujących się betonowaniem. Jego zaawansowane funkcje i wysoka jakość wykonania gwarantują skuteczność i trwałość, co czyni go niezbędnym narzędziem na każdym placu budowy.
Funkcje Wibratora przyczepnego Enar VET 300!
Wibrator Enar VET 300 został zaprojektowany z myślą o maksymalnej wydajności i trwałości. Jego najważniejsze cechy to:
- Częstotliwość wibracji: 3000/min - zapewnia skuteczne zagęszczanie betonu, co przekłada się na lepszą jakość konstrukcji.
- Obudowa aluminiowa o wysokiej wytrzymałości - gwarantuje długą żywotność urządzenia, nawet w trudnych warunkach.
- Łożyska nasmarowane smarami o długiej żywotności - umożliwiają długotrwałą pracę bez potrzeby częstej konserwacji.
- Moc: 180 W - zapewnia odpowiednią siłę wibracji dla różnych zastosowań.
- Silniki elektryczne - wykonane z blach o małym zaniku, co zwiększa wydajność i zmniejsza temperaturę pracy.
Wydajność i niezawodność
Wibrator Enar VET 300 to synonim wydajności i niezawodności. Dzięki regulowanym mimośrodom, użytkownik ma możliwość dostosowania mocy wibracji do indywidualnych potrzeb, co zwiększa efektywność pracy. Dodatkowo, jego kompaktowe wymiary oraz niska waga, wynosząca zaledwie 9 kg, ułatwiają transport i montaż na miejscu pracy.
Wszechstronność zastosowania
Urządzenie to znajduje zastosowanie w szerokim zakresie prac budowlanych, od małych projektów po duże inwestycje. Dzięki swojej wszechstronności, wibrator Enar VET 300 jest idealnym narzędziem zarówno dla małych firm budowlanych, jak i dużych przedsiębiorstw. Jego wysoka jakość wykonania oraz renomowana marka Enar gwarantują satysfakcję z użytkowania.
Dlaczego warto wybrać Wibrator przyczepny Enar VET 300?
Wybór wibratora Enar VET 300 to inwestycja w jakość i niezawodność. Urządzenie to zostało zaprojektowane z myślą o spełnieniu najwyższych standardów, co czyni je idealnym rozwiązaniem dla profesjonalistów. Jego mocne strony to nie tylko wydajność, ale także łatwość obsługi i konserwacji, co przekłada się na długotrwałe użytkowanie bez problemów.
Bezpieczeństwo i komfort pracy
Wibrator Enar VET 300 zapewnia nie tylko efektywność, ale także bezpieczeństwo pracy. Dzięki solidnej konstrukcji i wysokiej jakości materiałom, urządzenie jest odporne na uszkodzenia mechaniczne. Dodatkowo, niskie wibracje i hałas podczas pracy zwiększają komfort użytkowania, co jest szczególnie istotne podczas długotrwałych projektów.
Wibrator przyczepny Enar VET 300 dostępny na TOOLSA.EU!
Zakup wibratora Enar VET 300 w sklepie TOOLSA.EU to gwarancja najwyższej jakości i profesjonalnej obsługi. Sklep oferuje szeroki asortyment produktów, które spełniają oczekiwania najbardziej wymagających klientów. Dzięki współpracy z renomowanymi producentami, takimi jak Enar, TOOLSA.EU zapewnia dostęp do najlepszych narzędzi na rynku.
Sprawdź także inne podobne produkty w kategorii Betonowanie.
Opis
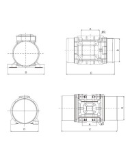
| Siła odśrodkowa | 0 - 2.9 kn | 
|---|---|
| Ciężar | 9 kg | 
| Częstotliwość wibracji | 3000/min | 
| Moc | 180 w | 
| Producent | Enar | 
| Model | Vet 300 | 
| Długość węża | 245 mm | 
| Szerokość | 165 mm | 
| Napięcie znamionowe | 230 / 380v 50 hz | 
| Odległość pomiędzy osiami c | 140 mm | 
| Odległość pomiędzy osiami d | 90 mm | 
| Średnica g | 11 mm | 
Recenzje
Na razie brak opinii klientów.
Przeglądasz “Wibrator przyczepny Enar VET 300”
.webp) 
  
Firma Enar oferuje swoim klientom 12 miesięcy gwarancji, co jest obietnicą jakości i niezawodności. Dzięki temu każda maszyna zakupiona od Enar jest objęta pełną ochroną przez rok od daty zakupu.
Roczna gwarancja obejmuje wszystkie komponenty i podzespoły, zapewniając bezproblemowe użytkowanie przez cały okres ochrony.
 
 		 
 ![Nagrzewnica olejowa z odprowadzeniem spalin Master BV 77 Master Heaters - Dane techniczne:  Pojemność zbiornika [ l ]: 36 Przepł Nagrzewnica olejowa z odprowadzeniem spalin Master BV 77 Master Heaters - Dane techniczne:  Pojemność zbiornika [ l ]: 36 Przepł](https://www.toolsa.eu/27692-home_default/nagrzewnica-olejowa-z-odprowadzeniem-spalin-master-bv-77.jpg) 
 ![Osuszacz powietrza Master DH 752 Master Heaters - Dane techniczne:  Pojemność zbiornika [ l ]: 5.7 Poziom hałasu [ dB(A) ]: 52 P Osuszacz powietrza Master DH 752 Master Heaters - Dane techniczne:  Pojemność zbiornika [ l ]: 5.7 Poziom hałasu [ dB(A) ]: 52 P](https://www.toolsa.eu/27670-home_default/osuszacz-powietrza-master-dh-752.jpg) 
  
  
  
  
  
  
  
  
  
     